
Casa en Quillón: memoria familiar y apertura al paisaje
La Casa en Quillón (2013) fue concebida como una ampliación y reforma de la vivienda original construida por los padres de la clienta. Una casa cargada de memorias familiares, donde cada muro y cada rincón guardaban historias compartidas. Durante la obra, al demoler ciertas partes, emergió con claridad el peso emocional de intervenir un lugar íntimamente ligado a la vida de quienes lo habían habitado.
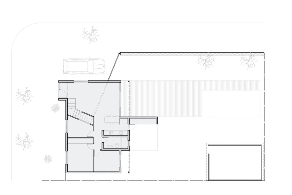
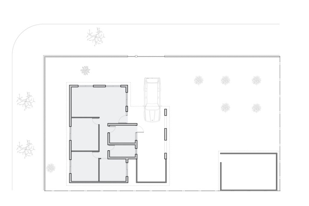
El proyecto consistió en la incorporación de un segundo nivel liviano en madera, sobre la antigua estructura de un piso. La estrategia proyectual buscó que este nuevo volumen se percibiera como un techo abierto hacia el interior, desplegándose con un gran ventanal que enmarca el paisaje del pueblo y el cerro Cayumanqui, el macizo más alto de la zona (780 msnm), cuya presencia se convirtió en horizonte cotidiano desde la casa.
La construcción estuvo marcada por un cuidado minucioso de los detalles: los encuentros entre las nuevas piezas de madera y la base de hormigón, reforzada con perfiles metálicos doble T que permitieron sostener el piso liviano del segundo nivel. La operación generó una doble altura que, desde el acceso, abre la mirada hacia el fondo y hacia arriba, multiplicando la sensación de amplitud. La planta baja también fue ajustada para reforzar esta perspectiva de profundidad.
En medio del proceso, una araucaria plantada décadas atrás por el padre de la clienta debió ser trasladada. Aunque aún era pequeña, su edad superaba los 25 años. Con maquinaria pesada se realizó el traslado, un gesto cargado de simbolismo: preservar la memoria viva de la familia, aun cuando la casa cambiaba.
La Casa en Quillón es, así, un proyecto de transformación que no solo añadió metros cuadrados, sino que también abrió un diálogo entre lo heredado y lo nuevo, entre la memoria íntima y la proyección hacia el paisaje.












